Conditions de vente
Dont prix de vente : 210 000 €
Dont HN* TTC à la charge de l'acquéreur : 10 500 € (5%)
Description
Maison / villa à vendre - MONTDARDIER (30120)
Édifiée sur une parcelle avec jardin intimiste de 148 m², elle se compose de :
Rez-de-chaussée : garage de 21 m², trois caves avec établi et un bureau.
1er étage : salon lumineux de 17 m² avec pierres et poutres apparentes, salle à manger de 13 m², une chambre de 12 m², salle d’eau avec WC, grande véranda de 15 m² et belle terrasse de 47 m² donnant sur le jardin.
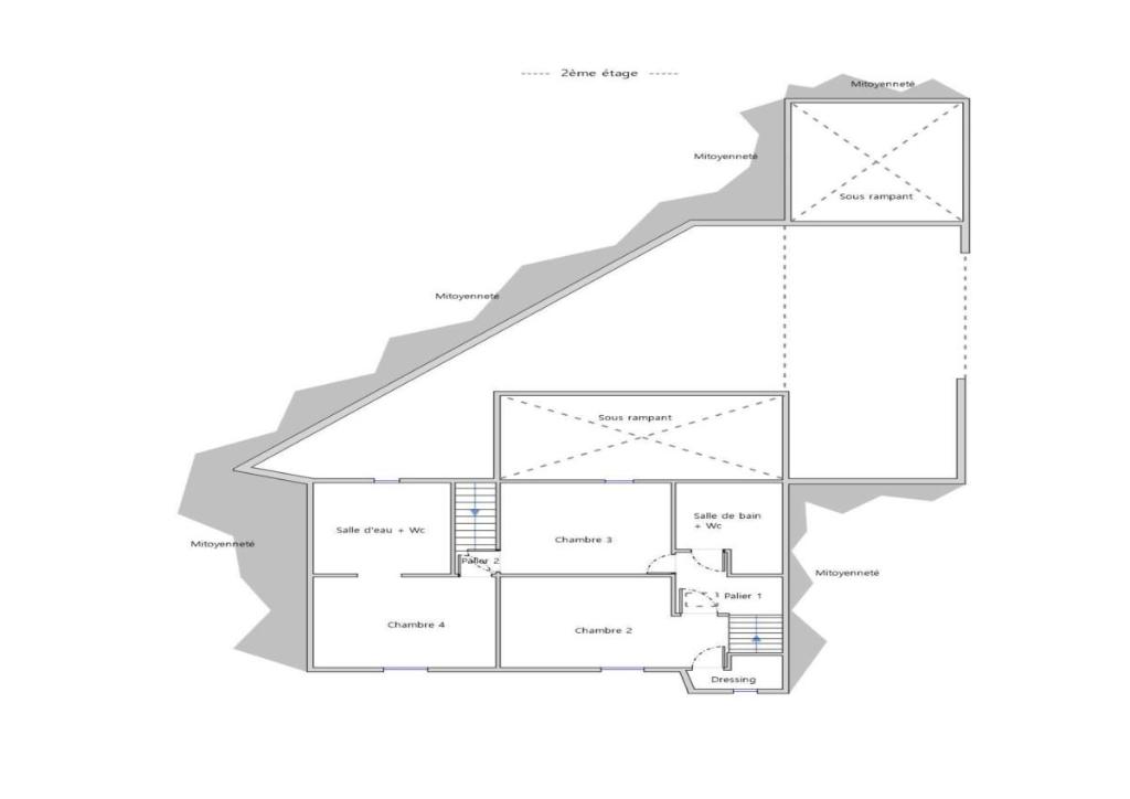
2e étage : trois chambres confortables, deux salles d’eau avec WC.
Dépendance : un espace indépendant de 14 m² avec salle d’eau et WC, idéal pour accueillir ou pour un projet locatif.
Ses atouts
Charme de l’ancien : pierres et poutres apparentes
Jardin de 148 m², agréable et facile d’entretien
Terrasse spacieuse de 47 m² avec vue dégagée sur le jardin
Véranda lumineuse de 15 m², utilisable toute l’année
Dépendance indépendante offrant de multiples possibilités
Une maison chaleureuse et pleine de charme, idéale pour une famille ou pour un investissement locatif avec potentiel.
Visites : Sur rendez-vous.
Immobilier.notaires® : Evaluer, acheter & vendre avec les notaires partout en France. 12 000 notaires, experts et négociateurs vous accompagnent dans vos projets immobiliers en toute confiance.
Ancien/Neuf | Ancien |
Surface habitable | 148 m² |
Surface terrain | 468 m² |
Nombre de pièces | 0 |
Référence | 30066-113 |
Date de mise à jour | 08/10/2025 |
Diagnostics de performance énergétique
Classe énergétique :
178 kWh/m2.an
6 kg CO2/m2.an

Emission de gaz à effet de serre :
6 kg Co2/m2.an

Diagnostic effectué le : 26/08/2025
*HN : Honoraire de négociation, hors frais de rédaction d'acte.
Pour les ventes, les prix sont affichés hors droits d'enregistrement et de publicité foncière.
**Honoraires de négociation TTC.
Pour les ventes, les prix sont affichés hors frais de rédaction d'acte, hors droits d'enregistrement et de publicité foncière. Pour les locations, les honoraires comprennent les frais de visite, de constitution de dossier et de rédaction de bail (Article 5 de la loi n°89-462 du 6 juillet 1989 modifié par la loi n°2017-86 du 27 janvier 2017 - art. 124)
Contacter l'office
Votre contact
Negociation
Amandine PRADEILLES
Téléphone : 0634862837
Contacter par email