Conditions de vente
Dont prix de vente : 65 000 €
Dont HN* TTC à la charge de l'acquéreur : 4 500 € (6.9%)
Description
Maison / villa à vendre - L ESPEROU (30570)
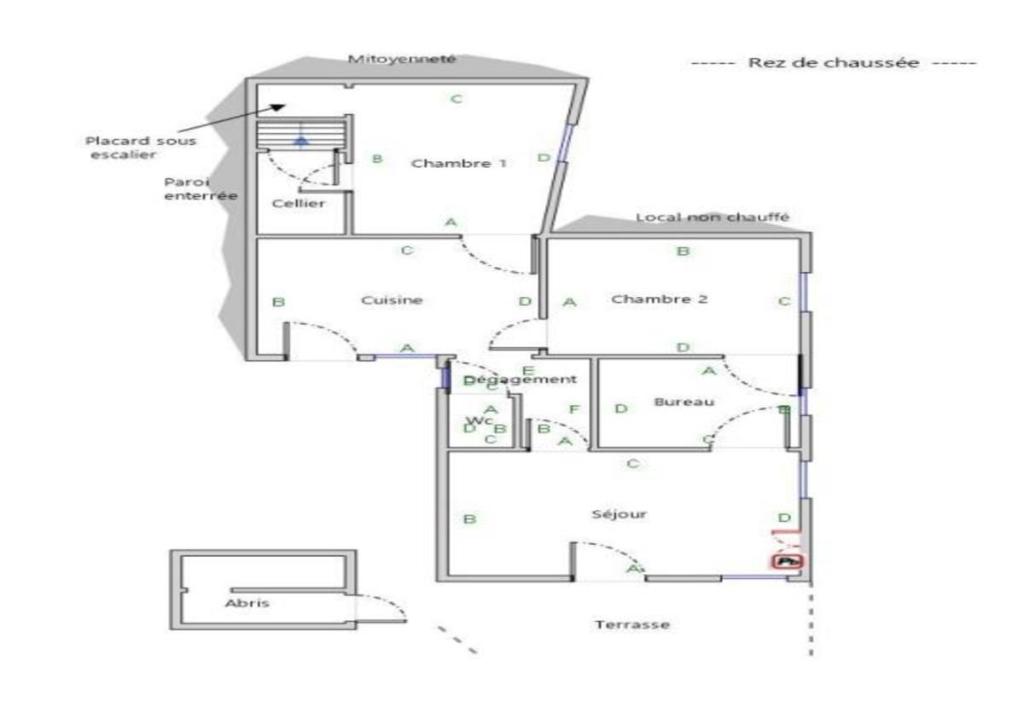
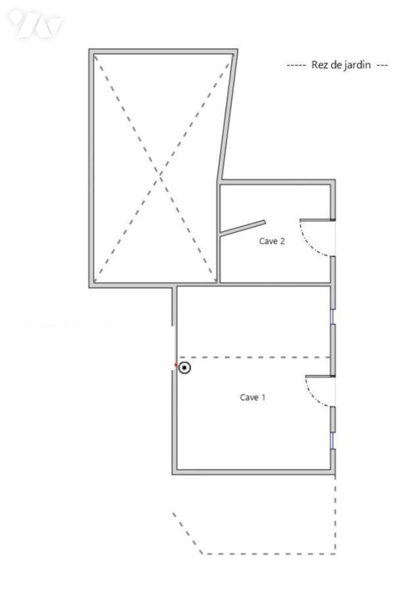
Authentique maison de village dans son état d’origine, idéale pour les amateurs de rénovation. Accessible à pied, elle bénéficie d’une belle terrasse surplombant le paysage et d’un vaste terrain de 7 300 m². Prévoir une rénovation complète (électricité, menuiseries, etc.) pour en faire un lieu unique à votre image.
« Les informations sur les risques auxquels ce bien est exposé sont disponibles sur le site Géorisques : www.georisques.gouv.fr
Visites : Sur rendez-vous.
Immobilier.notaires® : Evaluer, acheter & vendre avec les notaires partout en France. 12 000 notaires, experts et négociateurs vous accompagnent dans vos projets immobiliers en toute confiance.
| Ancien/Neuf | Ancien |
| Surface habitable | 84 m² |
| Surface terrain | 7358 m² |
| Nombre de pièces | 0 |
| Référence | 30066-110 |
| Date de mise à jour | 31/10/2025 |
Diagnostics de performance énergétique
Classe énergétique :
355 kWh/m2.an
11 kg CO2/m2.an
Logement à consommation énergétique excessive
Emission de gaz à effet de serre :
11 kg Co2/m2.an
Diagnostic effectué le : 14/10/2025
*HN : Honoraire de négociation, hors frais de rédaction d'acte.
Pour les ventes, les prix sont affichés hors droits d'enregistrement et de publicité foncière.
**Honoraires de négociation TTC.
Pour les ventes, les prix sont affichés hors frais de rédaction d'acte, hors droits d'enregistrement et de publicité foncière. Pour les locations, les honoraires comprennent les frais de visite, de constitution de dossier et de rédaction de bail (Article 5 de la loi n°89-462 du 6 juillet 1989 modifié par la loi n°2017-86 du 27 janvier 2017 - art. 124)
Contacter l'office
Votre contact
Negociation
Amandine PRADEILLES
Téléphone : 0634862837
Contacter par email










